Link Assistenza
800 910457
Assistenza
Contatti
Numero Verde
800 910457
Assistenza e Supporto
Listini
Accedi
a Gaivi
Showroom
Arredo Bagno
Accessori bagno
Arredo lavanderia e cucina
Box attrezzati e saune
Box doccia
Mobili bagno e componenti
Oggettistica arredo bagno
Tutti i listini Arredo Bagno
Rubinetteria
Doccia e aste e flessibili
Rubinetteria - mix
Rubinetteria acqua
Rubinetteria gas
Saracinesche
Valvole acquaegas
Tutti i listini Arredo Bagno
Sanitari
Cassette wc
Colonne scarico
Disabili
Doccia e aste e flessibili
Fire clay
Piatti doccia
Porcellane
Sedile per wc
Sifoname
Vasche
Tutti i listini Cercamica sanitaria
Riscaldamento
Bruciatori
Caldaie basamento
Caldaie murali
Caminetti e stufe
Corpi scaldanti
Fumisteria x caldaie
Impianto riscaldamento pavimento
Mensole per radiatori e lavello
Pannelli solari
Tappi e riduzioni e nipples
Termoregolazione
Tubo fumo
Valvole e detentori per radiatori
Valvole miscelatrici
Tutti i listini Riscaldamento
Condizionamento
Clima
Condizionamento e clima
Daikin
Aermec
Tutti i listini Condizionamento
Idraulica
Bollitori e scaldabagni
Attrezzatura
Minuterie varie
Impiantistica
Pompe
Tubi e raccorderie
Vedi tutti i listini prezzi
Listini
Arredo bagno
Rubinetteria
Ceramica sanitaria
Riscaldamento
Condizionamento
Bollitori e scaldabagni
Attrezzatura
Minuterie varie
Impiantistica
Pompe
Tubi e raccorderie
Servizi
Tutti i listini prezzi
Listino articoli per marche e settori
Showroom Gaivi
Oltre 2000 mq esposizione arredo bagno
Listini PDF
Scarica oltre 500 listini prezzi in formato PDF
Centri assistenza tenica
Elenco di 4000 Centri assistenza tecnica in Italia
Iva agevolata 4% e 10%
Documentazione per accedere a Iva agevolata
Detrazioni fiscali 50% e 65%
Scopri tutte le detrazioni fiscali disponibili
home
listini
polymaxacciai
pagina 152
POLYMAXACCIAI
condizionamento, impiantistica, minuterie varie, riscaldamento, tubi e raccorderie (2.061 articoli)
In questa pagina
plastikoax
Ordinamento standard
Dal prezzo più basso al più alto
Dal prezzo più alto al più basso
Per recensione
12
24
48
96
1
...
150
151
152
153
...
172
riscaldamento
tubo fumo
raccordi condensazione
plastikoax
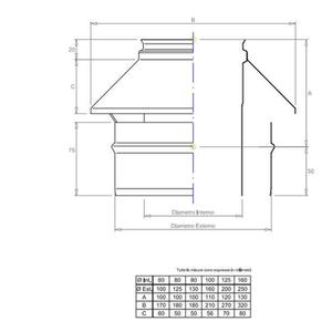
PLASTIKOAX SUPPORTO MURALE DOPPIAPARETE - INTERNO IN PPS Ø 100 MM. / ESTERNO INOX Ø 160 MM. PER CALDAIE A CONDENSAZIONE
POLYMAXACCIAI
DK440100000
d. 100 ● ACCIAIO INOX / PLASTICA
192,43
€
Aggiungi al carrello
Anteprima Scheda
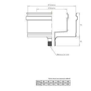
PLASTIKOAX TAPPO DI SCARICO DOPPIAPARETE - INTERNO IN PPS Ø 100 MM. / ESTERNO INOX Ø 160 MM. PER CALDAIE A CONDENSAZIONE
POLYMAXACCIAI
DK350100000
ACCIAIO INOX/PLAST
67,10
€
Aggiungi al carrello
Anteprima Scheda
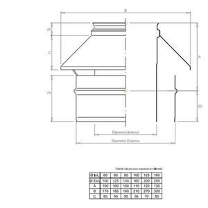
PLASTIKOAX TERMINALE COASSIALE DOPPIAPARETE - INTERNO IN PPS Ø 100 MM. / ESTERNO INOX Ø 160 MM. PER CALDAIE A CONDENSAZIONE
POLYMAXACCIAI
DK590100000
ACCIAIO INOX / PLASTICA
96,40
€
Aggiungi al carrello
Anteprima Scheda
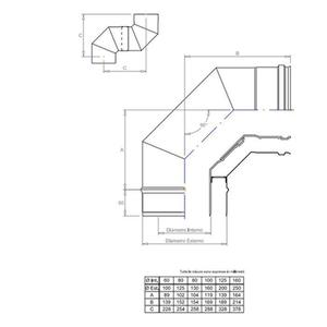
PLASTIKOAX CURVA FUMO 45° DOPPIAPARETE - INTERNO IN PPS Ø 125 MM. / ESTERNO INOX Ø 200 MM. PER CALDAIE A CONDENSAZIONE
POLYMAXACCIAI
DK200125000
d. 125/200 ● ACCIAIO INOX PLASTICA
104,88
€
Aggiungi al carrello
Anteprima Scheda
PLASTIKOAX CURVA FUMO 90° DOPPIAPARETE - INTERNO IN PPS Ø 125 MM. / ESTERNO INOX Ø 200 MM. PER CALDAIE A CONDENSAZIONE
POLYMAXACCIAI
DK220125000
d.125/200 ● ACCIAIO INOX PLASTICA
139,25
€
Aggiungi al carrello
Anteprima Scheda
PLASTIKOAX MODULO DI ISPEZIONE DOPPIAPARETE - INTERNO IN PPS Ø 125 MM. / ESTERNO INOX Ø 200 MM. PER CALDAIE A CONDENSAZIONE
POLYMAXACCIAI
DK300125000
ACCIAIO INOX / PLASTICA
181,23
€
Aggiungi al carrello
Anteprima Scheda
PLASTIKOAX STAFFA A MURO Ø 125 DOPPIAPARETE REGOLABILE DA 50 MM. A 80 MM. IN ACCIAIO INOX
POLYMAXACCIAI
DK460125000
35,48
€
Aggiungi al carrello
Anteprima Scheda
PLASTIKOAX SUPPORTO MURALE DOPPIAPARETE - INTERNO IN PPS Ø 125 MM. / ESTERNO INOX Ø 200 MM. PER CALDAIE A CONDENSAZIONE
POLYMAXACCIAI
DK440125000
ACCIAIO INOX / PLASTICA
240,63
€
Aggiungi al carrello
Anteprima Scheda
PLASTIKOAX TAPPO DI SCARICO DOPPIAPARETE - INTERNO IN PPS Ø 125 MM. / ESTERNO INOX Ø 200 MM. PER CALDAIE A CONDENSAZIONE
POLYMAXACCIAI
DK350125000
89,58
€
Aggiungi al carrello
Anteprima Scheda
PLASTIKOAX TERMINALE COASSIALE DOPPIAPARETE - INTERNO IN PPS Ø 125 MM. / ESTERNO INOX Ø 200 MM. PER CALDAIE A CONDENSAZIONE
POLYMAXACCIAI
DK590125000
124,65
€
Aggiungi al carrello
Anteprima Scheda
PLASTIKOAX CURVA FUMO 45° DOPPIAPARETE - INTERNO IN PPS Ø 160 MM. / ESTERNO INOX Ø 250 MM. PER CALDAIE A CONDENSAZIONE
POLYMAXACCIAI
DK200160000
140,81
€
Aggiungi al carrello
Anteprima Scheda
PLASTIKOAX FASCETTA DI BLOCCAGGIO DOPPIAPARETE Ø 160 MM. IN ACCIAIO INOX
POLYMAXACCIAI
DK650160000
6,78
€
Aggiungi al carrello
Anteprima Scheda
1
...
150
151
152
153
...
172
Precedente
1 / 5
1
(current)
2
3
4
5
Prossima
Top